
TUFFI & PRÖPPI
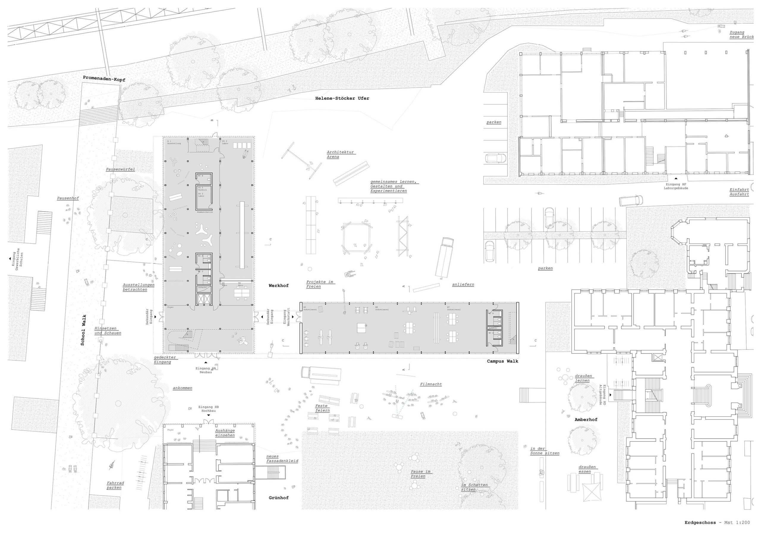
Mit dem Ersatzneubau für das Institutsgebäude Haspel A gewinnt die Bergische Universität Wuppertal ein neues Gesicht. Zwei präzise gesetzte Baukörper ordnen den Campus neu und schaffen klare Freiräume: zur Stadt hin den offenen Werkhof, belebt von Werkstätten und dem Blick auf die Schwebebahn, zur Hochschule hin den ruhigen Grünhof, der an die Tradition klassischer Universitäten anknüpft.
Die Gebäude tragen die Namen „Tuffi“ und „Pröppi“ – ein Augenzwinkern in Richtung Wuppertaler Stadtgeschichten. Tuffi ist der robuste, tragende Teil des Ensembles: ein kompakter Baukörper mit klarer Struktur, der Seminarräume, Labore und Büros aufnimmt. Er bildet das Rückgrat des Campus, bietet Arbeitswelten mit hoher Flexibilität und schafft Raum für konzentrierte Lehre und Forschung. Seine Fassaden sind zurückhaltend, klar gegliedert und unterstreichen die funktionale Kraft des Gebäudes – ein solides Fundament für den Hochschulalltag.
Pröppi dagegen setzt das architektonische Zeichen nach außen. Als transparenter, leichter Baukörper öffnet er den Campus zur Stadt. Mit Hörsaal, Bibliothek und großzügigen Ausstellungsflächen bildet er das öffentliche Gesicht des Ensembles. Das Erdgeschoss ist einladend und durchlässig gestaltet, die Bibliothek krönt den Baukörper mit weitem Panoramablick über die Wupper hinweg. Pröppi ist nicht nur Funktionsgebäude, sondern Bühne: ein Ort der Begegnung, der Präsentation und des Austauschs zwischen Hochschule und Öffentlichkeit. In der Gegenüberstellung mit Tuffi entsteht ein spannungsvolles Paar, das Pragmatismus und Offenheit, Konzentration und Kommunikation miteinander verbindet.
Ein neuer Campus Walk, der Haupteingang und die geplante Brücke über die Wupper öffnen das Gelände und vernetzen Hochschule, Stadt und Landschaft. Robuste Baukörper, flexible Grundstrukturen und eine hochwasserangepasste Geländegestaltung bilden die Grundlage für eine nachhaltige Entwicklung.
Der Wettbewerbsgewinn aus dem Jahr 2021 markiert den Auftakt für eine zukunftsorientierte Hochschularchitektur in Wuppertal. Mit Tuffi und Pröppi entstehen zwei starke Adressen, die dem Campus Haspel eine neue Identität verleihen – und die Umsetzung in den kommenden Jahren vorbereiten.

Zwei Baukörper "Pröppi" und "Tuffi" fassen den neu entstehenden Campus. Sie stärken den vorhandenen Wegeraum und bilden neue, differenzierte Außenräume: einen Werkhof und einen Grünhof.

Der Grünhof ist das freiräumliche Bindeglied zwischen dem Campus und den üppig bewachsenen Hardt-Anlage am Hang. Er bietet Ruhe abseits vom Werkhof und der befahrenen Straße.


Bauherr
Bau- und Liegenschaftsbetrieb NRW (BLB NRW), Niederlassung Düsseldorf
Nutzer
Bergische Universität Wuppertal, Fakultät Architektur und Bauingenieurwesen
Nutzung
Lehr- und Forschungsgebäude für die Fachbereiche Architektur sowie Bauingenieurwesen; beinhaltet Seminarräume, Labore, Büros und sonstige nutzungsspezifische Einrichtungen sowie Neugestaltung des Campus Haspel
Ort
Campus Haspel, Wuppertal
Programm
ca. 13.500 m² NF
Seminarräume, Labore, Werkstätten
Büros für Lehrende und Verwaltung
Bibliothek mit Lesesaal und Panoramablick
Hörsaal für ca. 300 Personen
Ausstellungsflächen im Erdgeschoss
Campus-Eingang, Foyer und Campus Walk
Cafeteria und Aufenthaltsbereiche
Technik- und Nebenflächen, hochwasserangepasste Sockelzone
Team
Wettbewerb: Andreas Schüring Architekten BDA
Team: Andreas Schüring, Daniel Leseberg, Sarah Polak, Julius Weritz
Realisierung: Team Schüring Schulz GmbH
Team: Andreas Schüring, Gernot Schulz, Nana Busch (Projektleitung), Pierre Klein, Teddy Rubezhov-Aleftan, Frederik Teupen, Frederik Grefen
Tragwerksplanung
Horz + Ladewig, Köln
TGA
Ingenieurbüro Jöken, Steinfurt
Brandschutz
Dipl.-Ing. K. Leiermann, Dormagen-Zons
Bauphysik
Hansen + Partner Ingenieure GmbH, Wuppertal
Landschaftsarchitektur
Reither Landschaftsarchitekt, Bonn
© Renderings
Grau Visuals
Fertigstellung:
2023 -